Toy Hauler Travel Trailers For Sale in Moorefield, West Virginia
If you are looking for a travel trailer that is more suited for a true adventure, you absolutely need to check out our new and used toy hauler travel trailers for sale in Moorefield, West Virginia. Toy haulers are specifically designed to have a garage area in the rear, making them capable of storing all of your favorite toys. Whether you are bringing along your ATV, golf cart, dirt bikes, or any other vehicle to make the most out of any road trip, the toy hauler travel trailer can do it! If this sounds like the kind of RV that you are in the market for, you can check out our complete inventory of toy hauler travel trailers for sale in Moorefield, West Virginia in the listing below. Or, if you have any questions, you can contact us today for all of the details. No matter what kind of RV you are in the market for, you can find some amazing options at Weimer Camper Sales, your top toy hauler travel trailer dealer in Moorefield, West Virginia.
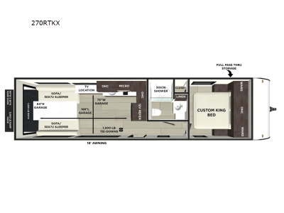
Toy Hauler Travel Trailer
-
- 28ft long
- 7,480 lbs
- Sleeps 6
- 1 slides
Weimer Camper Sales is not responsible for any misprints, typos, or errors found in our website pages. Any price listed excludes sales tax, registration tags, and delivery fees. Manufacturer pictures, specifications, and features may be used in place of actual units on our lot. Please contact us @681-240-1515 for availability as our inventory changes rapidly. All calculated payments are an estimate only and do not constitute a commitment that financing or a specific interest rate or term is available.
Manufacturer and/or stock photographs may be used and may not be representative of the particular unit being viewed. Where an image has a stock image indicator, please confirm specific unit details with your dealer representative.
